Centraal in de karakteristieke Groenstraat, op loopafstand van dorpskern “Waubach” en “stiltegebied”, gelegen NIEUW herbouwde (2025) halfvrijstaande eengezinswoning met bestaande achteruitbouw, garage (1952), 3 slaapkamers en tuin.
De hoofdbouw van deze 'brandwoning' is helemaal gesloopt en is in 2025 opnieuw herbouwd door Grausbouw BV in dezelfde staat volgens de huidige bouwvoorschriften.
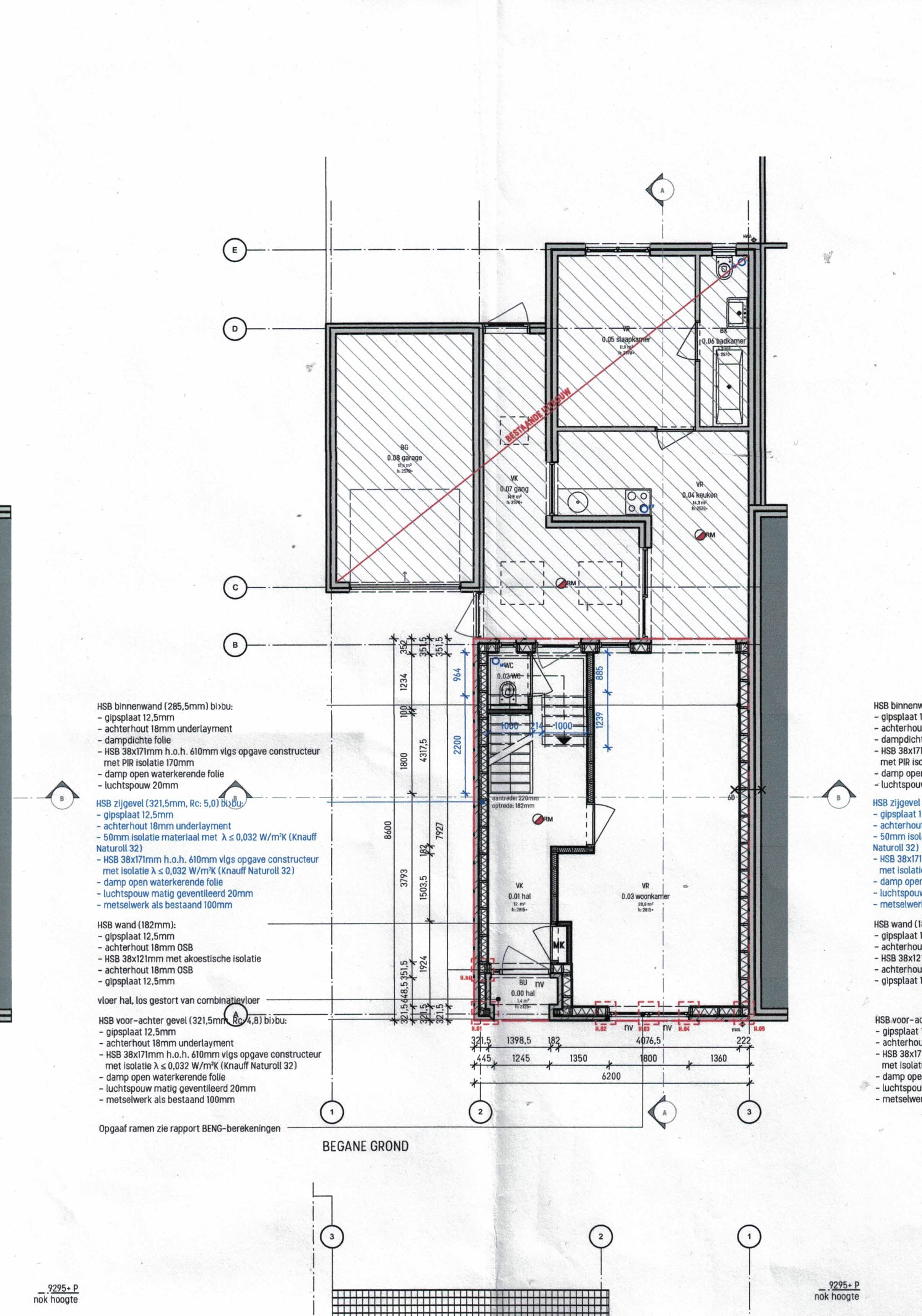
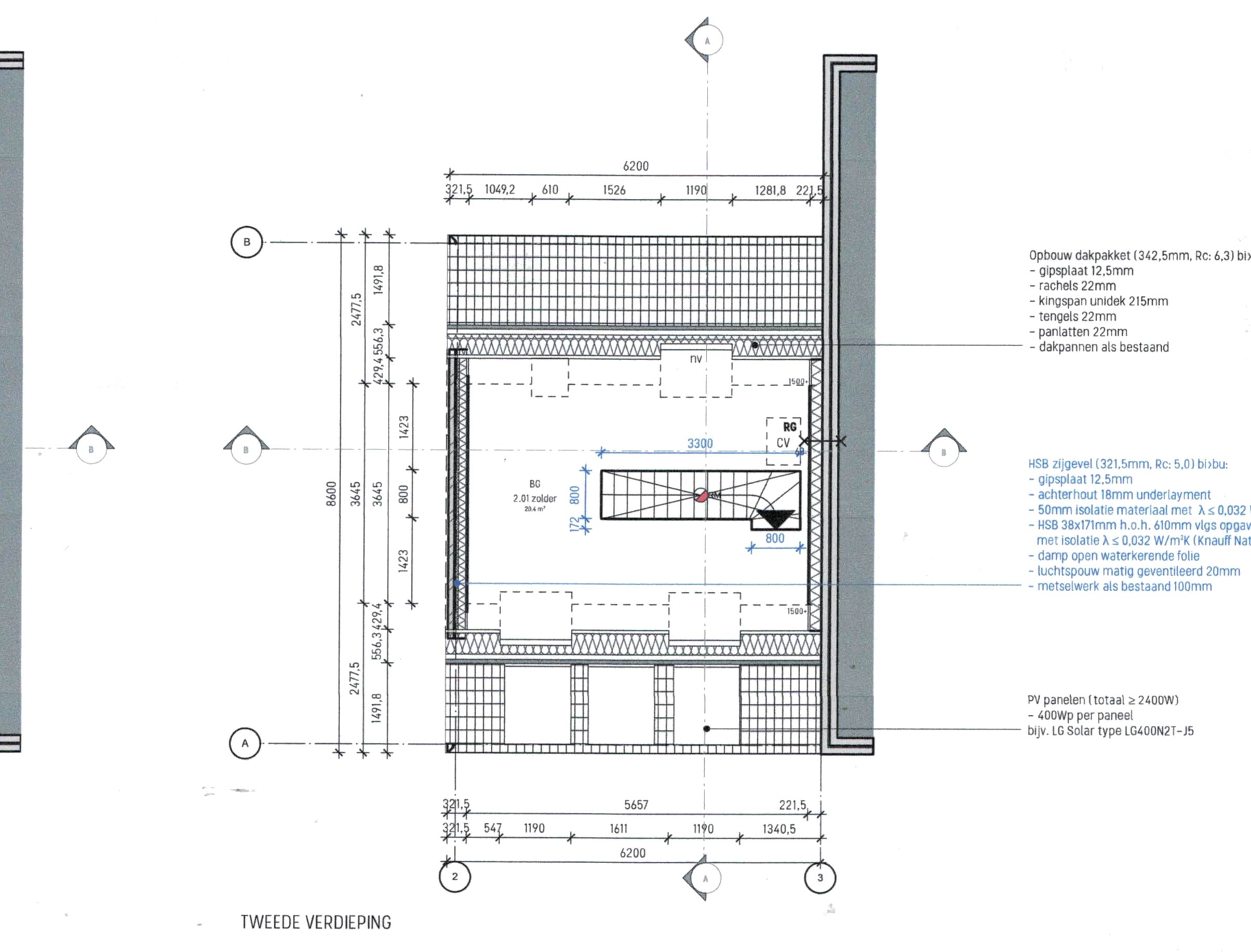
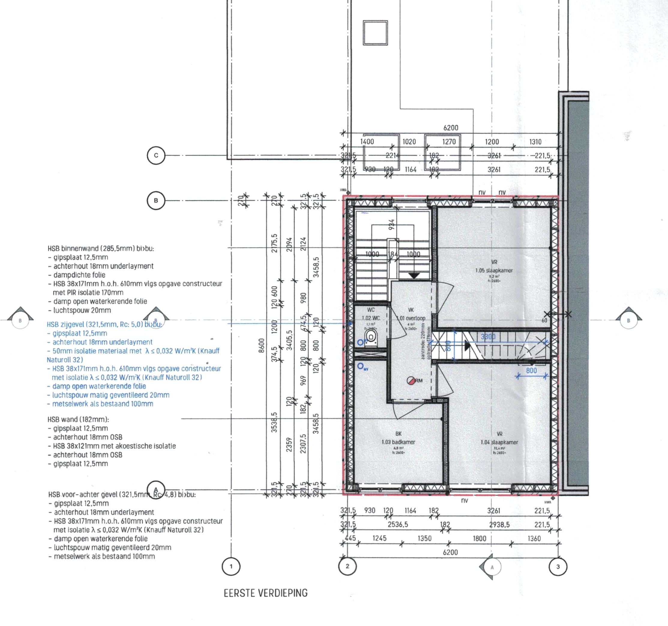
Er is hierbij gekozen voor een combinatie van (geisoleerde) houtskeletbouw met gemetselde buitenmuren, betonpannendak, hardhouten kozijnen met dubbele beglazing, betonnen begane grondvloer en houten verdiepingsvloeren.
De bestaande achteruitbouw (1952) is 'binnenmuur vrij' gemaakt om zelf een grote leefkeuken met eigentijdse keukeninstallatie te kunnen realiseren en krijgt een nieuwe betonnen begane grond vloer met isolatie en vloerverwarming (keuken is niet door aannemer geleverd).
INDELING
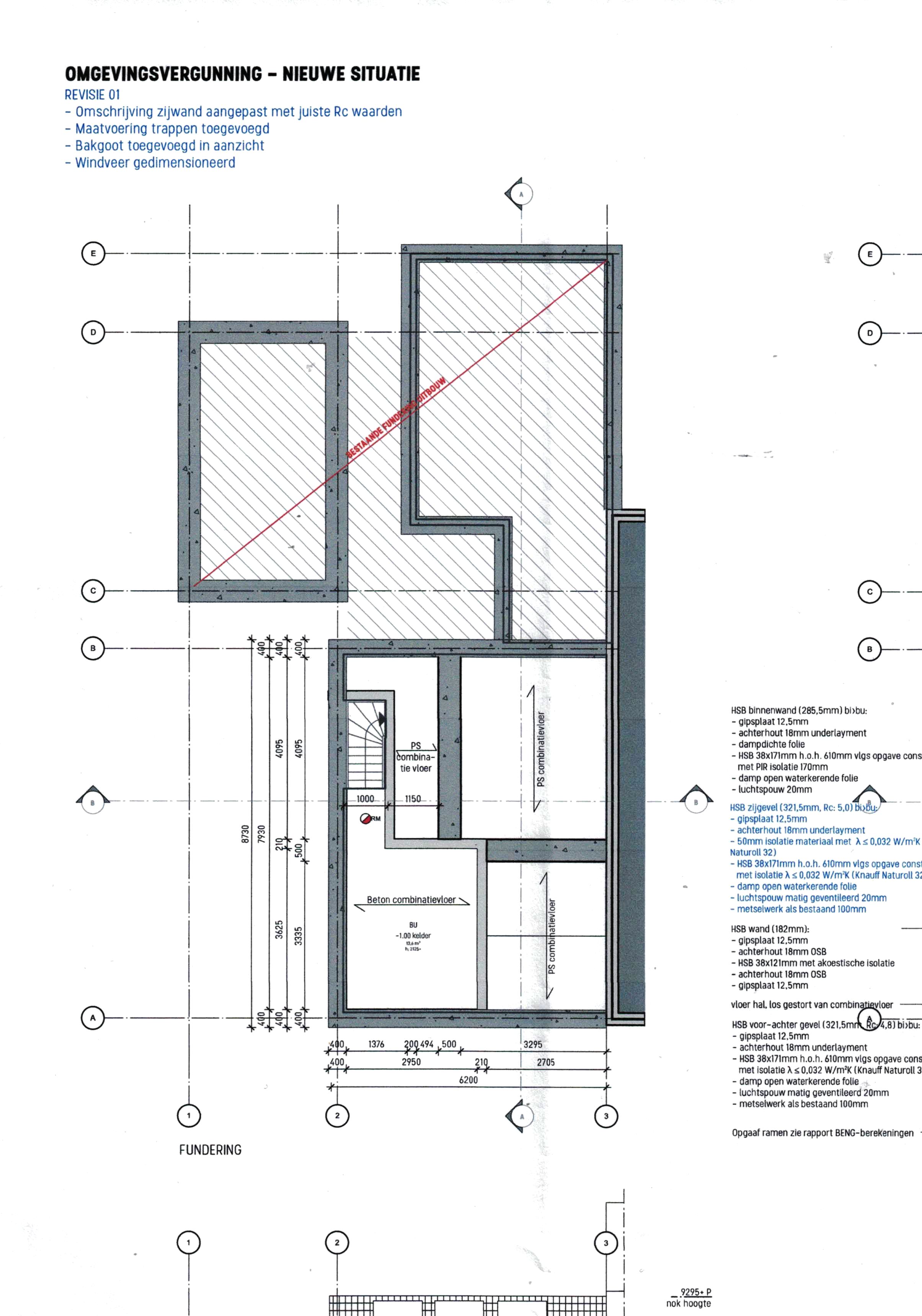
Souterrain: provisiekelder (ca.14m2);
Begane grond: lange oprit naar achterliggende garage met elektrische rolluik en zijingang.
Overdekte entree, hal met meterkast, gastentoilet, trappenhuis, doorzonwoonkamer (ca. 3.40x8.00m), grote leefkeuken (ca. 3.90x8.50m) in achteruitbouw v.v. lichtkoepels, gang met zijingang en buitendeur naar achtertuin;
1e Verdieping: overloop, betegelde badkamer (ca. 2.50x2.70m) v.v. douche en dubbele wastafel, separaat toilet, twee slaapkamers (ca. 3.45x3.26m/3.45x3.00m), vaste zoldertrap;
2e Verdieping: overloop, 1 mansardeslaapkamer (ca. 16m2) v.v. dakvensters, installatieruimte voor cv combiketel en mechanische ventilatieunit.
BIJZONDERHEDEN
-Centrale lokatie gelegen nabij wandelgebied, scholen, winkels voor de dagelijkse boodschappen, openbaar vervoer en uitvalswegen;
-Aanvaarding van de nieuw herbouwde woning is na oplevering van de aannemer eind 2025;
-3 Slaapkamers aanwezig;
-Vloerverwarming in de woning (begane grond) gecombineerd met centraal gestookte cv-gas combiketelinstallatie;
-Zes zonnepanelen op het hoofddak;
-Volledige isolatie van de hoofdbouw (vloer, gevel, ramen, dak);
-Getoonde plattegronden zijn nog niet 100% definitief;
-Definitieve energielabel woning is een A-label;
-Nadere inlichtingen op aanvraag
De waarborgsom/bankgarantie bedraagt 10% van de koopsom. De koper dient deze binnen 2 weken nadat het financieringsvoorbehoud is verlopen bij de desbetreffende notaris te deponeren.
Ter bescherming van de belangen van zowel koper als ook verkoper wordt uitdrukkelijk gesteld dat een koopovereenkomst met betrekking tot deze onroerende zaak eerst dan tot stand komt nadat koper en verkoper de koopovereenkomst hebben getekend (schriftelijkheidsvereiste).
Alle door ons kantoor verstrekte informatie omtrent onroerende zaken, moet beschouwd worden als een uitnodiging om in onderhandeling te treden, en is geheel vrijblijvend! Aangegeven maten zijn slechts bij benadering. Aan deze beperkte info kunnen geen rechten worden ontleend. Indien c.v.ketel en/of warmwatervoorziening een huurtoestel is, dient koper de huurovereenkomst over te nemen.
Een (eventueel) bijgevoegde plattegrond dient uitsluitend als globale indicatie/visualisatie. Hieraan kunnen uitdrukkelijk tevens geen rechten worden ontleend.
